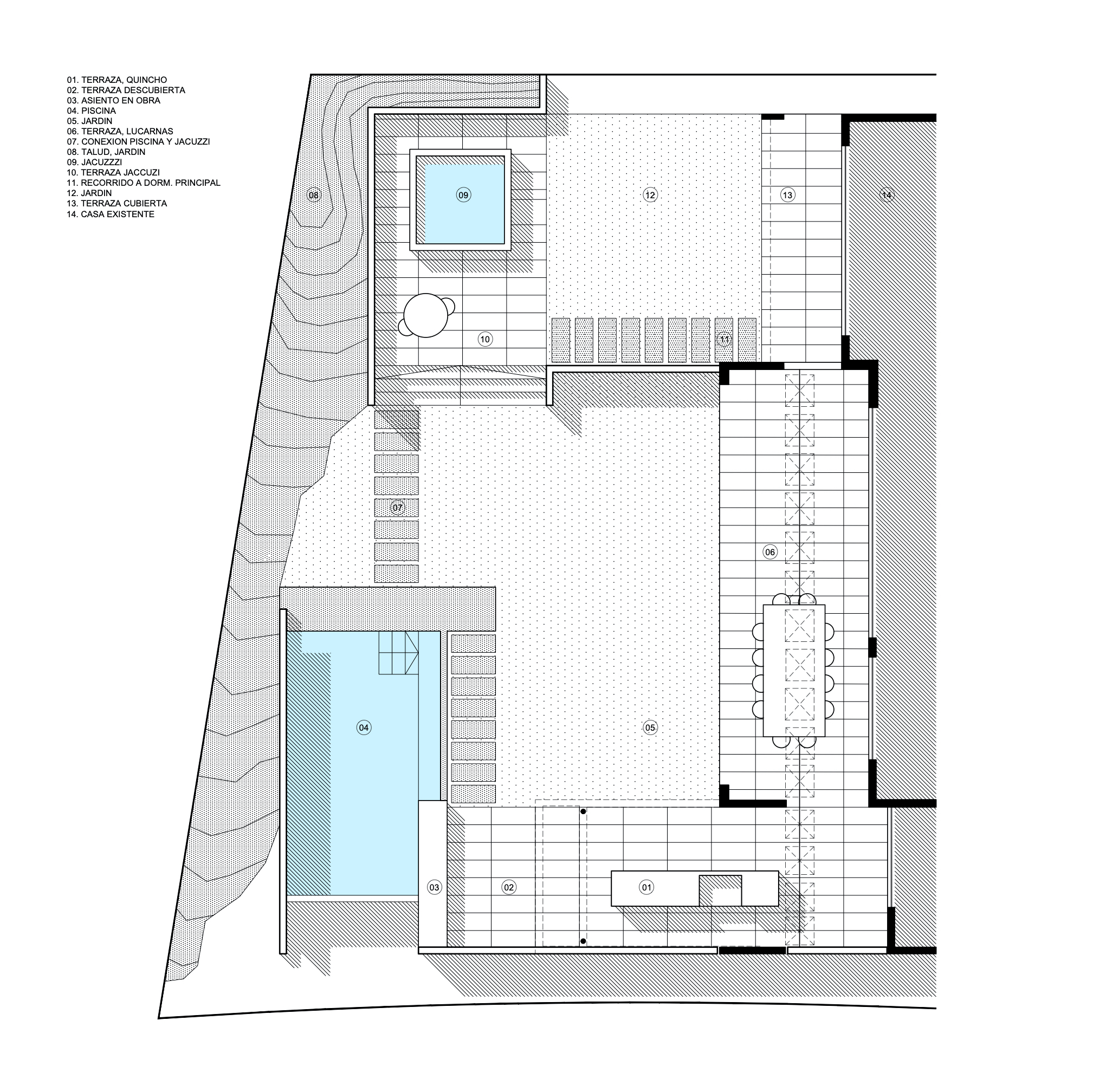
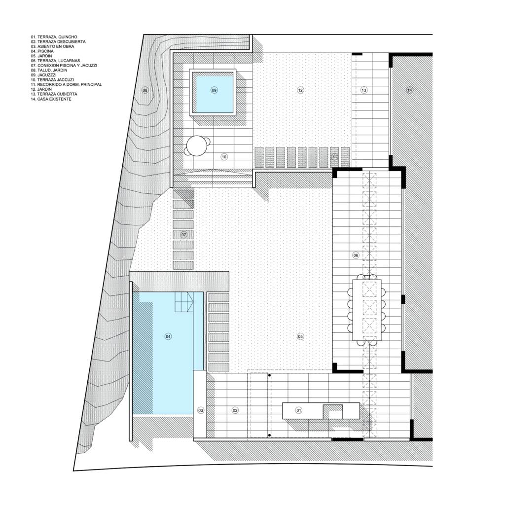
Proyecto: Obras exteriores

Asociados: Crescente Böhme

Año: 2020

Superficie: 164 m2

Fotografías: Denise Heirman @denise.fotoarq

Dron: Juan Carlos Daroch @jcdaroch_ph

 

 

 

Share Project :

  • Categories:
  • Share Project :